Informatie
- Referentienummer
- #60901
- Prijs
- € 340.000
- Type woning
- Bouwgrond
- Plaats
- Jávea
- Provincie
- Alicante
- Zwembad
- Prive 10x4 m
- Oppervlakte perceel
- 889m²
Bouwkavel met goedgekeurde vergunning in Pinosol, Jávea.
Deze vlakke, zonnige kavel van 889 m² is oost-west georiënteerd en beschikt over een reeds goedgekeurde bouwvergunning voor een moderne villa met drie slaapkamers. De locatie is rustig gelegen in Pinosol, op slechts drie minuten rijden van het zandstrand Arenal in Jávea aan de Costa Blanca. Er is geen wachttijd bij de gemeente, aangezien de vergunning al is verleend en het project direct kan worden gestart. De aansluitingen voor water, elektriciteit en riolering zijn reeds in aanvraag.
De kavel is omheind aan drie zijden en heeft een voetgangersvriendelijke straatzijde, waardoor de opstartkosten voor de bouw laag zijn. Er is geen verplichting tot het gebruik van een specifieke aannemer, wat volledige vrijheid biedt in de uitvoering van het project. Desgewenst kunnen betrouwbare lokale aannemers worden aanbevolen.
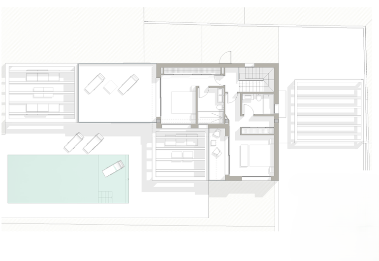
De huidige vergunning omvat de bouw van een moderne, tweelaagse villa van 177 m² met drie slaapkamers, elk met een eigen badkamer, een open woon- en eetgedeelte met keuken, een bijkeuken, een gastentoilet en een technische ruimte. Er bestaat tevens een optie om het project uit te breiden met een souterrain, waar eenvoudig een vierde slaapkamer, extra badkamer en bijvoorbeeld een fitness- of cinemaruimte gerealiseerd kunnen worden.
Buiten biedt het ontwerp diverse terrassen, een onderhoudsvriendelijke mediterrane tuin, een zwembad van 10 x 4 m en een carport voor twee auto’s. De woning zal prachtig uitzicht bieden op de Montgó en ligt in een rustige, veilige woonwijk op loopafstand van voorzieningen.
Indien u vragen heeft over deze woning dan kunt u telefonisch of per e-mail contact met ons opnemen.
Voorzieningen
- Bergzicht
- Bijkeuken
- Carport
- Dichtbij voorzieningen
- Gastentoilet
- met project
- Oriëntatie Oost-West
- Orientatie Zuid
- Panoramazicht
- Privé tuin
- Rustige omgeving
- Stille omgeving
- Terras
- Vlak grondstuk
- Vlakbij de haven
- Vlakbij golfbaan
- Vlakbij het strand
- Vrij uitzicht
- Vrij van bouwer
Bouwgrond te koop in Jávea / Spanje #60901
Vraag vrijblijvend informatie aan
Binnen 24 uur ontvangt u meer informatie over deze woning na het verzenden van onderstaand formulier. Uw gegevens worden beschermd en vertrouwelijk behandeld door PrimaVillas.